 |
 |
 |
 |
 |
 |
| |
|
|
|
|
| |
2024
Harjuhovi communal housing for elderly
Vaajakoski, Jyväskylä
Conversion, 612 brm2



|
|
| |
2023
Villa M extension
Jyväskylä
New building, 11 brm2



|
|
| |
|
|
| |
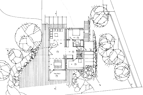
2019
Villa M
Jyväskylä
New building, 45 brm2 |
|



|
| |
2006
Summer House extension
Lilla Herrö, Espoo |


|
| |
1996
Saalestrasse - Schudomastrasse
Berlin, Germany
Restoration |




|
| |
1996-97
Private housing
Henttaa, Espoo
New building |




|
| |
1988-91
Housing projects
Helsinki Metropolitan Area |










|